жилая экосистема
Атлас Ауро
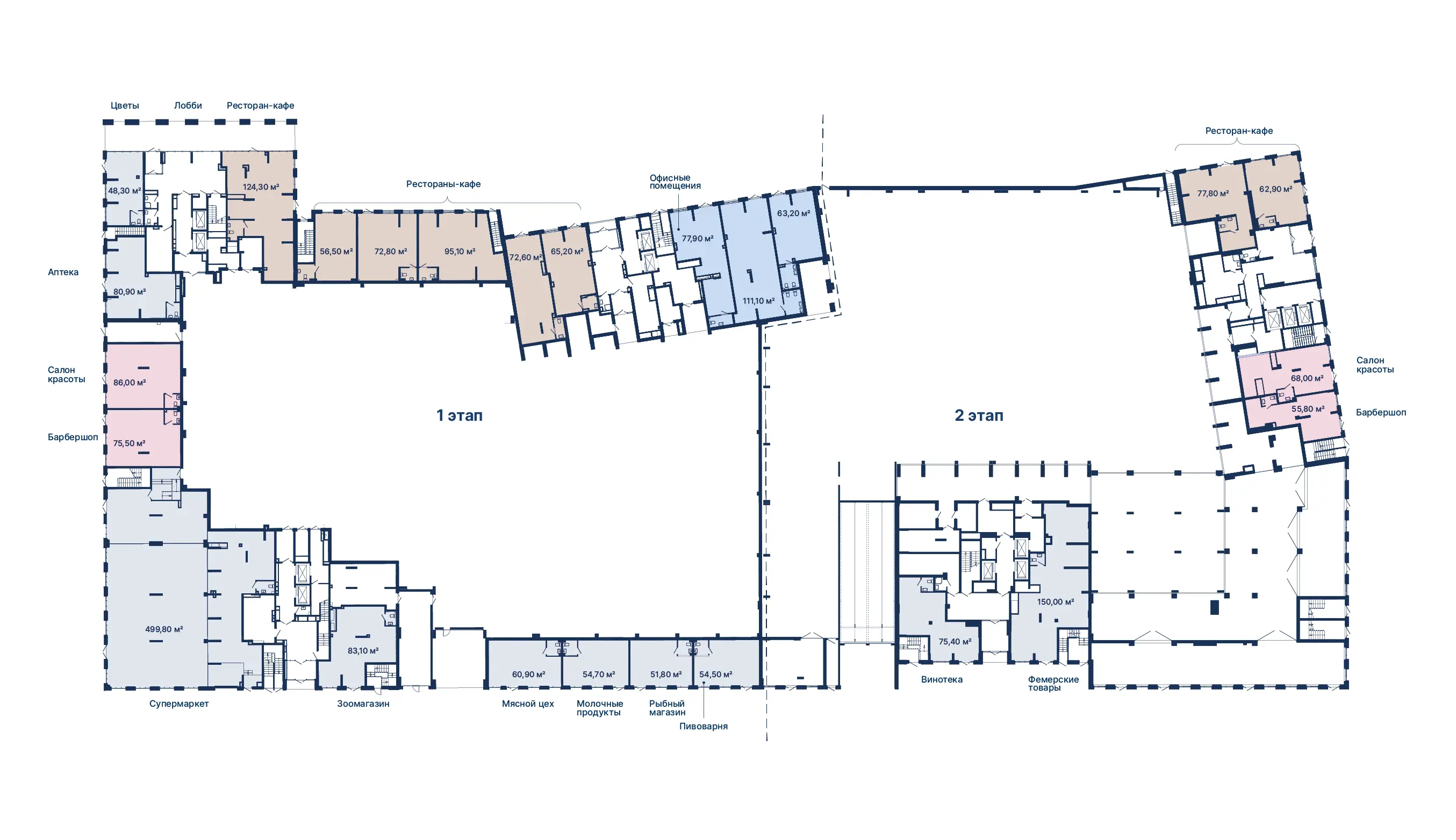
Коммерция
Площади от 21 до 659 кв.м
Екатеринбург, кв. Саввы Белых — Шатурская
О проекте
«Атлас Ауро» — это жилая экосистема комфорт-плюс класса, включающая в себя пять секций от 18 до 32 этажей с закрытой территорией и приватным двор-парком, разделенным на тихие зоны отдыха для взрослых и детей. Дома соединены двухуровневым паркингом и коммерческой инфраструктурой, а все входы обеспечивают безбарьерный доступ.



Преимущества
Наполнение квартиры
Отделка
Выполнена предчистовая отделка и стяжка пола.

Выбрать помещение
10 предложений
1 Этаж

2 Этаж

3 этаж

Получить консультацию




